Plan 5

European-Inspired Grandeur for the Discerning Austin Buyer

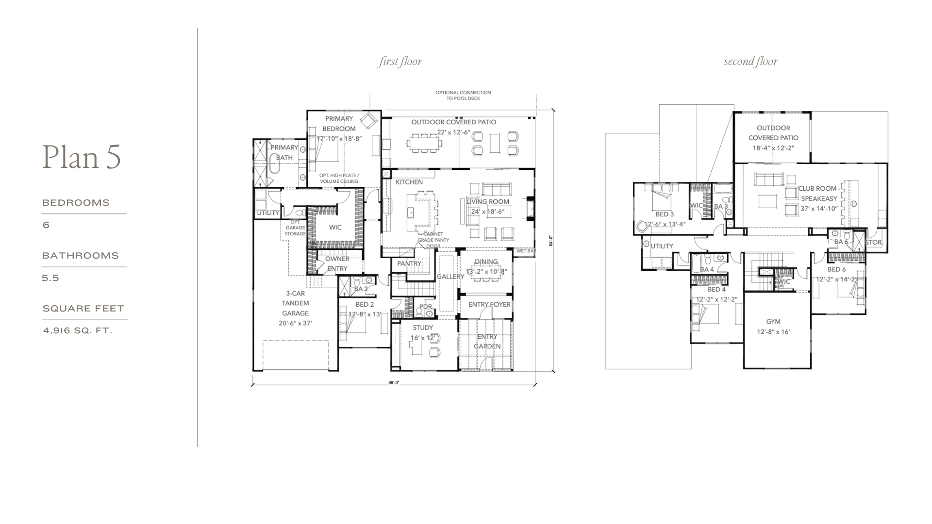
Expansive and intentional, Plan 5 delivers 6 bedrooms, 5.5 baths, and 4,916 square feet of elevated comfort.

For homebuyers looking for timeless sophistication, exceptional craftsmanship, and space to host and grow, Plan 5 – Elevation A offers the pinnacle of luxury living at The Overlook at Westlake. This expansive 6-bedroom, 5.5-bathroom residence spans nearly 4,916 square feet and is brimming with curated details rooted in Old World charm and modern elegance.

With its welcoming entry courtyard, decorative iron lighting, arched arbor, and stone + stucco façade, Plan 5 makes a lasting impression from the moment you arrive. The look is confidently European, yet deeply rooted in Texas Hill Country warmth.

Plan 5A - Modern European

Plan 5B - Modern Hill Country

Plan 5 Highlights

  • 6 Bedrooms | 5.5 Bathrooms | 4,916 Sq Ft

  • Entry courtyard and iron-detailed arbor

  • Grand kitchen with concealed pantry, butler’s prep space, and Wolf/Sub-Zero appliances

  • Primary bath with dual showers and freestanding tub

  • Gym, study, club room/speakeasy, and private secondary suites

  • 3-car tandem garage and full yard irrigation

A European-Inspired Interior

KITCHEN, BUTLER’S PANTRY & DINING

  • 48” Wolf range and Sub-Zero refrigeration

  • Concealed walk-in pantry, panel-ready dishwasher, and in-wall coffee system

  • Mixed cabinetry finishes with curated stone and tile backsplashes

  • Beverage fridge and under-counter freezer drawers for added convenience

LIVING ROOM & MILLWORK FEATURES

  • Plaster fireplace as a sculptural focal point

  • Cased windows, wainscoting, and ceiling beams add character

  • Grand open living area flows seamlessly into the kitchen and formal dining

PRIMARY SUITE

  • Built-in coffee bar vestibule entry

  • Freestanding tub and two full walk-in showers with integrated benches

  • Expansive walk-in closet with dedicated dressing areas and refined finishes

FLEX SPACES & PRIVATE QUARTERS

  • Private study accessible via the courtyard

  • Upstairs club room with speakeasy flair, antique-style mirrored backsplash, and wet bar

  • Fully equipped gym, second upstairs study, and guest rooms with designer-selected tile and lightinge

Square footage and selections are approximate and subject to change. Renderings and materials are conceptual only.

Schedule your personalized tour today and explore every detail in person.

Ready to Envision Life at The Overlook?

RESERVE YOUR NEW HOME IN WESTLAKE